NEN 2443:2013: richtlijn voor ontwerpen parkeervoorzieningen

NEN 2443:2013: ‘Parkeren en stallen van personenauto’s op terreinen en in garages’ is de Nederlandse ontwerprichtlijn voor het ontwerp van parkeervoorzieningen (parkeergarages en parkeerterreinen). NEN 2443 biedt een goede basis om de gebruikskwaliteit voor toekomstige gebruikers te waarborgen, maar dat alleen is niet voldoende. Naast de eisen uit NEN 2443 is verkeerskundige kennis over de interpretatie en toepassing onmisbaar. Goudappel biedt verkeerskundig advies op operationeel, tactisch en strategisch niveau, zodat een parkeervoorziening niet alleen voldoet aan de NEN 2443, maar ook optimaal bruikbaar is.

NEN2443

Wat is NEN 2443?

NEN 2443 is de kwaliteitsnorm vanuit de parkeersector. In deze norm - opgesteld vanuit NEN (Stichting Koninklijk Nederlands Normalisatie Instituut, organisatie die normen beheert en ontwikkelt) - staan functionele eisen, prestatie-eisen en aanbevelingen voor het ontwerpen van drie typen parkeervoorzieningen: parkeerterreinen, openbare parkeergarages, niet-openbare parkeergarages en stallinggarages. De eisen vanuit de norm zijn afgestemd op de beoogde gebruikersgroepen. 

Is NEN 2443 verplicht?

Nee, een parkeervoorziening hoeft volgens het Bouwbesluit (sinds begin 2024 opgegaan in de Omgevingswet) wettelijk gezien niet te voldoen aan NEN 2443. Wel kunnen gemeenten in hun parkeerbeleid (lokale wet- en regelgeving) eisen dat aan NEN 2443 wordt voldaan. Ook kunnen partijen zoals ontwikkelaars, beleggers en bouwbedrijven onderling contractueel vastleggen dat een te realiseren parkeervoorziening moet voldoen aan deze norm. Daarmee willen zij een minimale gebruikskwaliteit waarborgen. Deze minimale kwaliteitseisen zijn met name gericht op veiligheid, comfort en duurzaamheid. 

Wat als een parkeervoorziening niet voldoet aan NEN 2443?

Als een (onderdeel van een) parkeervoorziening niet voldoet aan NEN 2443, wil dat niet zeggen dat deze niet bruikbaar is. NEN 2443 dient als kwaliteitsborging, niet als verplichting. Anderzijds is een parkeervoorziening die volledig voldoet aan de norm óók niet direct optimaal bruikbaar. Hiervoor is verkeerskundige kennis onmisbaar. Goudappel kent de inhoud van NEN 2443. Sterker nog, we hebben samen met andere partijen uit de branche meegeschreven aan de inhoud van de norm. We kennen dus de inhoudelijke eisen en weten deze zo te interpreteren en toe te passen dat het bij de lokale situatie past. We richten ons daarbij op alle verkeerskundige aspecten van parkeervoorzieningen. Door de NEN 2443:2013 als basis te combineren met onze kennis en expertise, werken onze parkeerexperts en verkeerskundig ontwerpers aan optimale parkeervoorzieningen.

Van toetsing tot advies: Goudappel kijkt verder

Goudappel wordt vaak gevraagd om parkeergarages te toetsen. Met name in opdracht van ontwikkelaars die willen weten of de parkeergarage die door een architect wordt ontworpen, voldoet aan de NEN-norm. Dat kan gaan om een toetsing in het schetsontwerp, het voorlopig ontwerp of zelfs het definitief ontwerp. Naast deze toetsing kunnen wij ook verkeerskundige input aan het ontwerpteam geven tijdens deze ontwerpfases.  

Bij een NEN 2443-toets controleren we of de ontwerptekeningen van de parkeervoorziening op de volgende onderdelen voldoen aan NEN 2443:2013:

  • Maatvoering van de parkeervakken i.c.m. de parkeerwegen 
  • Maatvoering van de rijbanen en bochten 
  • Routering 
  • Maatvoering van de hellingbanen 
  • Vrije hoogte 
  • Vormgeving/maatvoering van de in-/uitgangspartij, inclusief benodigde opstelruimte 
  • Aansluiting op de openbare weg 
Lees meer over passende parkeernormen

Resultaat van toetsing aan NEN 2443: deskundig en onafhankelijk oordeel

Een toetsing door Goudappel geeft een deskundig en onafhankelijk oordeel over het ontwerp voor een parkeervoorziening, omdat wij altijd verder kijken naar mogelijke optimalisaties en bruikbare situaties (ook al voldoen ze niet aan de norm). Ook kijken we breder dan de strikte eisen uit NEN 2443, denk aan:

  • Bruikbaarheid en optimalisaties: als een parkeervak niet voldoet aan de NEN-norm betekent dat niet dat het vak niet bruikbaar is. Wij kijken of de situatie aangepast kan worden zodat het wel voldoet. Zo niet, dan beoordelen we de bruikbaarheid: hoe groter de afwijking vanuit de norm, hoe groter de effecten op de gebruikskwaliteit zijn.
     
  • Advies in alle ontwerpfases: hoe vroeger wij in het ontwerpproces betrokken worden, hoe groter de kans op een bruikbare en een ‘volgens-de-norm-goede’ parkeervoorziening. Aan het begin van het ontwerpproces is er vaak meer ruimte voor de nodige aanpassingen. Het zit onze adviseurs in het bloed om het maximale uit het ontwerp te halen: hoe realiseer je zoveel mogelijk parkeerplaatsen met een zo hoog mogelijke gebruikskwaliteit?
Lees meer over het effect van stedelijke ontwikkeling op parkeervoorzieningen

Toetsing aan NEN 2443 in de praktijk

Meer dan het ‘halen van een bocht’

We zien vaak dat bochten knelpunten zijn in ontwerpen van (verschillende) parkeervoorzieningen. Dat is verklaarbaar, aangezien NEN 2443 hier geen eenduidige eisen aan stelt. De gebruikskwaliteit wordt hierdoor lager, aangezien de benodigde ruimte in bochten vaak niet beschikbaar is. Met name bij smallere rijbanen. Het gevolg daarvan is:

  • Verminderde doorstroom: men moet de bocht met een lagere snelheid nemen. 
  • Schade: men schampt de constructie met het voertuig. 
  • Niet-haalbare bochten: we zien ontwerpen voorbijkomen waarbij de bochten niet eens gemaakt kunnen worden. 

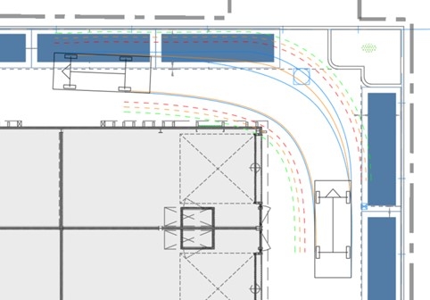
Omdat dit een veelvoorkomend probleem is, ontwikkelde Goudappel CURSIM. Hiermee toetsen wij bochten met rijcurvesimulaties. We zien daarmee hoe het voertuig de manoeuvre in de praktijk zal maken. Naast de baanbeschrijving hanteren wij een speling tot obstakels die is afgestemd op de beoogde groep gebruikers. 

Het is erg belangrijk om vroeg in het ontwerpproces dit soort toetsingen uit te voeren, zodat de mogelijke en veelvoorkomende problemen en knelpunten geen negatieve invloed hebben op de definitieve constructie.  

Rijcurvesimulatie: ontwikkeld met CURSIM, haalbaarheid van bochten in schematische weergave

Rijcurvesimulatie haalbaarheid bochten d.m.v. CURSIM

Meestvoorkomende problemen bij parkeergarages

Ook bij de entreepartij zien wij vaak onvoldoende ruimte in de bochten. Maar dat niet alleen. De meest voorkomende problemen bij het betreden en verlaten van parkeergarages zijn:

  • De apparatuur waar men een parkeerkaart moet aannemen of invoeren is soms niet bereikbaar voor de automobilist. 
  • Onvoldoende opstelruimte, waardoor wachtrijen op de openbare weg ontstaan. 
  • Het behoud van verschillende toegangssystemen bij verschillende eindgebruikers, zoals automatische kentekenherkenning/handzender/transponder voor vaste gebruikers en andere systemen voor bezoekers. 
Rijcurvesimulatie: ontwikkeld met CURSIM, haalbaarheid van bochten en inrijden/verlaten van entree

Rijcurvesimulatie van en naar entree parkeervoorziening d.m.v. CURSIM

Meer informatie over NEN 2443?

Benieuwd wat Goudappel voor u kan betekenen op verkeerskundig gebied? Of vragen over de NEN 2443:2013? Neem vrijblijvend contact op met Jantine de Wijs, adviseur parkeren en verkeerstechnisch ontwerp.